Multi motor drive belts for model codes 52038 thru 72044 washer extractors.
For smaller washer extractors go to Drive belt part number for multi motor washer extractors up to 48" diameter
Remember, some machines have configurations designed for specific customer needs. Please compare the part number you find with the information found on your actual belt.
5238 W Drive Chart
52038WP1 / 52038WTL / 52038WTN
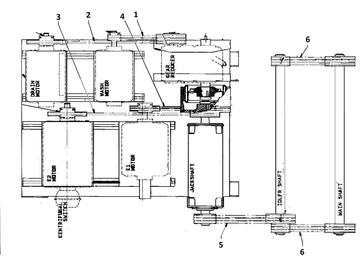
| 1 | 2 | 4 | 6 | 7 |
|---|
WASH TO GEAR RED | DRAIN TO GEAR RED | EXTRACT 1 TO JACKSHAFT | EXTRACT 2 TO JACKSHAFT | JACKSHAFT TO MAIN |
| 56VB066X x 2 belts | 56VB046X | 56VR063S x 4 belts | 56VR0950M3 x 3 belts | 56VS1600M8 x 8 belts |
Drive Assembly 60036WE2-WE3,60044WE2-WE3, 60044WR2-WR3
60036WE2 / 60036WE3 / 60044WE2 / 60044WE3 / 60044WP2 / 60044WP3
| 1 | 2 | 3 | 4 | 5 |
50 Hz, 60 Hz| WASH TO GEAR REDUCER | DRAIN TO GEAR REDUCER | EXTRACT 1 TO JACKSHAFT | EXTRACT 2 TO JACKSHAFT | JACKSHAFT TO MAIN |
56VR0425M4 x 4 belts | 56VR0750M2 x 2 belts | 56VR067S x 4belts | 56VR071S x 3 belts | 56VX1530W4 (50Hz), 56VS1505W4 (60Hz) |
Single Motor Drive 6044WP2, WP3, 6044WR2, WR3
60044WP2 SM / 60044WP3 SM / 60044WR2 / 60044WR3
3 (used exclusively after 2/9/2012 but earlier models may have) | 3 (phased out 2/9/2012 / check for 3 banded belts or 9 single belts) | 10 |
|---|
| MOTOR TO JACKSHAFT | MOTOR TO JACKSHAFT | JACKSHAFT TO MAIN |
| 56VB060XB3 x 3 belts | 56VB060X x 9 belts | 56VS1505W4 |
DRIVE CHART 4 MOTOR 60044 SP2-SP3

60044SP2 / 60044SP3
| 1 | 2 | 3 | 4 | 5 | 6 |
|---|
| WASH TO GEAR REDUCER | DRAIN TO GEAR REDUCER | EXTRACT 2 TO JACKSHAFT | EXTRACT 1 TO JACKSHAFT | JACKSHAFT TO IDLER | IDLER TO MAIN (2 Places) |
56VR053S x 4 belts | 56VR0900M2 x 2 belts | 56VR067S x 4 belts | 56VR1060M3 x 3 belts | 56VC173XBA x 3 belts | 56VC107XBA |
DRIVE CHART 60044SP2-SP3-SR2-SR3 SINGLE MOTOR
60044SP2 SM / 60044SP3 SM / 60044SR2 SM / 60044SR3 SM
2 (used exclusively after 2/9/2012 but earlier models may have) | 2 (phased out 2/9/2012 / check for 3 banded belts or 9 single belts) | 7 | 14 |
|---|
| MOTOR TO JACKSHAFT | MOTOR TO JACKSHAFT | JACKSHAFT TO IDLER | IDLER TO MAIN (2 Places) |
| 56VB062XB3 x 3 | 56VB062X x 9 | 56VC173XBA | 56VC107XBA |
Drive Chart 6440 - 6450E6N / 72046M5K Single Motor

64040E6N / 64050E6N
| 9 | 3 |
|---|
| MOTOR TO JACKSHAFT | JACKSHAFT TO MAIN |
| 56VX1530W4 | 56VB062X x 7 belts |
72046M5K
| 9 | 3 |
|---|
| 56VS780X5 x 2 | 56VS1800X5 x 2 |
Drive Chart 64040, 64050, 64046E6N/J6N 72046E5N/J5N 72058J5N
64040E6N / 64050E6N
| 17 | 14 | 3 | 4 | 20 |
50 Hz, 60 Hz| WASH TO GEAR RED | DRAIN TO GEAR RED | E1 TO CLUTCH | E2 TO CLUTCH | JACKSHAFT TO MAIN |
| 56VR0750M2 x 6 belts | 56VR050S x 2 belts | 56VR067S x 5 belts | 56VS0670M3 x 3 belts | 56VX1530W4 (50 Hz) 56VS1505W4 (60 Hz) |
64046J6N / 64046E6N
| 17 | 14 | 3 | 4 | 20 |
|---|
| 56VR0750M2 x 5 belts | 56VR050S x 2 belts | 56VR067S x 5 belts | 56VS0670M3 x 3 belts | 56VX1530W4 (50Hz) 56VS1505W4 (60 Hz) |
72046E5N / 72046J5N
| 17 | 14 | 3 | 4 | 20 |
|---|
| 56VR0750M2 x 6 belts | 56VR0500 x 2 belts | 56VR067S x 5 belts | 56VR067S x 5 belts | 56VX1700W5 50 Hz) 56VX1650W5 (60 Hz) |
72058J5N
| 17 | 14 | 3 | 4 | 20 |
|---|
| 56VR0750M2 x 6 belts | 56VR0500 x 2 belts | 56VR067S x 5 belts | 56VR063S x 5 | 56VX1700W5 (50Hz) 56VX1650W5 (60 Hz) |
Drive Chart 72044SR2, SR3 72044SP2, SP3
72044SP2 / 72044SP3 / 72044SR2 / 72044SR3
| 29 | 5 | 8 | 11 | 22 | 26 |
|---|
| WASH TO GEAR REDUCER | DRAIN TO GEAR REDUCER | EXTRACT 1 TO JACKSHAFT | EXTRACT 2 TO JACKSHAFT | JACKSHAFT TO IDLER | IDLER TO MAIN (2 PLACES) |
56VR053X x 6 belts | 56VR0900M2 x 2 belts | 56VR067S x 5 belts | 56VR112S x 4 belts | 56VC190XBA | 56VC120XBA |
drive chart 72044WP2,WP3,WR2,WR3
72044WP2 / 72044WP3 / 72044WR2 / 72044WR3
| 21 | 5 | 8 | 11 | 18 | 27 |
50 Hz, 60 Hz| WASH TO GEAR REDUCER | DRAIN TO GEAR REDUCER | EXTRACT 1 TO JACKSHAFT | EXTRACT 2 TO JACKSHAFT | JACKSHAFT TO MAIN | AUTOSPOT |
| 56VR050S x 6 | 56VR0750M2 x 2 | 56VR067S x 5 | 56VR071S x 4 | 56VC190XB6 / 56VC187XBA | 54C160 |
Drive Chart 72058-72075J2N
72075J2N / 72058J2N
| 14 | 15 | 9 |
50 Hz, 60 Hz| WASH TO GEAR REDUCER | EXTRACT TO JACKSHAFT | JACKSHAFT TO MAIN |
56VR071S x 6 belts | 56VR063X x 4 belts | 56VX1700W5, 56VX1650W5 |
For smaller washer extractors go to
Drive belt part number for multi motor washer extractors up to 64" diameter